Ledger

Ledger is a mixed-use commercial building containing spaces that range from offices and conference rooms to retail - inspired by and designed to represent the Bentonville community.

Ledger blends into its urban context by inviting the public in from Main Street, connecting the street grid with a breezeway, and adapting to the surroundings with its stepping terraces and all-glass exterior. Easily recognized by the ramps zig-zagging along the building’s east side, it offers a unique experience for pedestrians and bikers, creating public spaces of transition to nurture community and connection. For a tactile and meaningful experience, the copper cladding lining the ramps allows Ledger to age and develop with its context, transforming and giving back to the community over time.

The community-centered design and functionality create a six-story neighborhood-like experience in Ledger, blurring the line that separates the working environment from the outdoors. With generosity being a central part of its concept, it goes beyond the idea of a regular office building, inviting its users to find new ways of connecting work, community, and Bentonville’s biking culture.

More Project Information: Ledger

Location: Bentonville, Arkansas

Program: Flexible Office, Conferencing, Amenities, Retail

Area: 230,000 gsf

Status: Completed 2022

Client: Center City LLC, Blue Crane, Kyleton Development

Design Team, Core & Shell: Michel Rojkind and Callaghan Horiuchi + Marlon Blackwell Architects

Design Team, Programming & Interiors: Callaghan Horiuchi

Collaborators: HFA, Studio NYL, Engineering Consultants, McClelland Consulting Engineers, TM Light, The Flint Collective, Desman, Code Solutions Group, The McIntosh Group, Nabholz Construction, Custom Electronics, DMD, Naturemaker, Botanic Plant Co, Nabholz Millshop, Miller Knoll, Evo, Howse, Oz Art, CACHE, Stefan Sagmeister, Mayer of Munich.

WeWork Team: James Slade, Adrian Yau, Yoshio Fukumori, Isaac Smeke, Danielle Kemble, Fiona Ho, Arie Salomon, Edwin Garcia, Ivonne Gama, Ian Gu, Calvin Lee, Brandon Medeiros, Greg Rogers, Jake Williams, Chris Smiley, Valmik Vyas, Emma Fairchild, David Dubrow, Andrew Davies, Celia Dick, Michael Bruckmann, Daniel Hallett, Seema Bhangar, Sylvain Blanchard, Nick Nienaber, Jelena Ivanisevic, Star Davis, Leela Shanker.

Photography: Halkin Mason, Timothy Hursley, Karen Segrave, Liza G

Awards: The Plan Award, Office and Business. Mies Crown Hall Americas Prize Nominated Project. AIA Arkansas Honor Award. The American Architecture Award, Corporate Office Buildings Category. North American Copper in Architecture Awards. ASID Excellence in Design Gold Award, Collaboration in Design. Architizer A+ Awards for Coworking Space, Finalist.

Case Studies: MillerKnoll Project Profile. Modern Steel Construction Article. Kawneer Case Study.

Interiors

Combining flexible offices, conference spaces, and amenities, Ledger offers interior spaces looking to merge everyday working activities with the community experience of coworking. 

With its mixed uses and human-centered design, Ledger goes beyond the concept of a regular office building and transforms into a vertical neighborhood, allowing its users to experience the different parts and spaces it offers in a way that feels unique and meaningful. The natural palettes found in the interiors help create refined and comfortable atmospheres, using deep hues and layered textures to make spaces feel adaptable and approachable. Adding to the experience, the carefully curated, high-quality furniture selection merges comfort and high design, incorporating statement pieces and materials to create unexpected moments for the users.

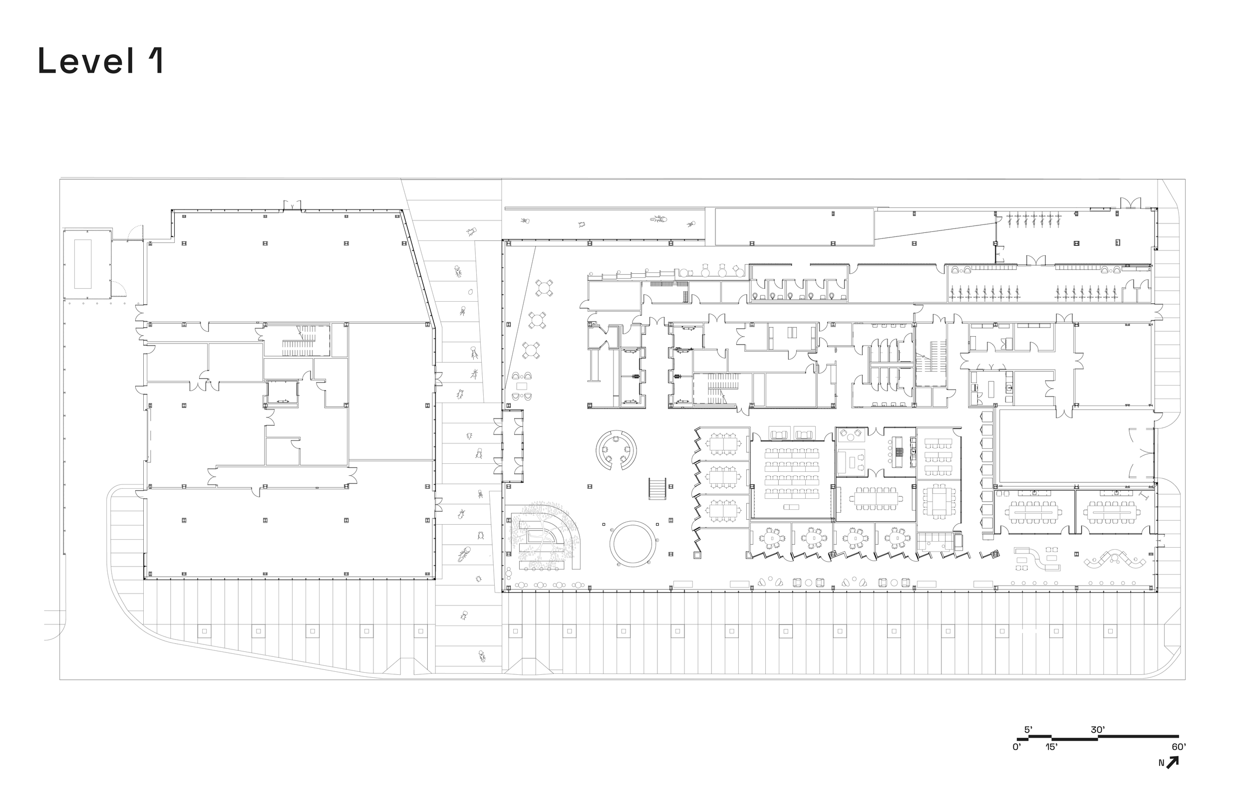
Lobby + Conferencing Center

The lobby and conferencing center take inspiration from the region’s natural landscapes, with river rocks, white oak, and a sustainable tree bringing the outside in with an emphasis on biophilic design. The reception desk works as its centerpiece, designed to be easily approached from every direction and low to be visible and accessible, with refined finishes that transform it into a tactile, high-quality experience. On the building’s east side, a walkway connects the lobby with the conference center, providing meeting spaces that show a dynamic and inviting area easily seen by Main Street’s pedestrians. Adding to the oasis-like feel of the lobby, the walkway is mirrored by its ceiling, acting as a flowing river that connects spaces while projecting activity and dynamism.

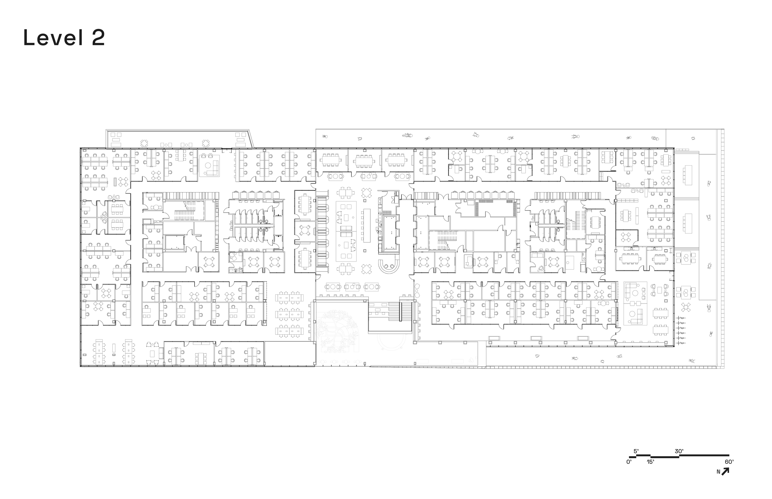
Coworking + Community

On the coworking floor, Ledger offers an energetic, vibrant working environment that accommodates different office types, styles, and sizes. The design approach uses brightness and neutrality to create fresh and welcoming spaces that provide comfort and adaptability to the users, with an atmosphere that doesn't feel overpowering but focuses on people and activities instead. Along with the working spaces, three different lounges offer the users a variety of options to incorporate social and community-centered elements into their routines, complementing Ledger's coworking experience.

Amenity Spaces

The top floor offers amenity spaces such as a rooftop bar and a terrace, creating relaxed and comfortable atmospheres perfect for the activities that take place after office hours. Inspired by the nature surrounding the building, the selected color palettes and furniture combinations bring the spaces to life with a calm and refined feel, working as a relaxed, high-quality environment for community events and gatherings.

Art Integration

Ledger boasts a public art program featuring over 200 original works of art from renowned and local artists. The interior design aimed to showcase these works while seamlessly integrating the art into the spaces. Each piece was carefully selected to complement the interior architecture, and in many cases, the interior design was then customized to enhance and spotlight the artwork. The resources and spaces provided to artists for showcasing their work champions the diverse and vibrant culture of Northwest Arkansas. This fusion of art and architecture creates an inspiring and dynamic environment that highlights the positive impact of art on the community

Next
Next

Arvest at Ledger